37 Waterfall Gully Road, BEAUMONT
House
WHERE CHARACTER & CHARM MEETS CONTEMPORARY LIVING
Encapsulating elegance and charm with its character stone features, this superb residence has been tastefully renovated, fusing classic character with contemporary style.
Overlooking landscaped grounds spanning approximately 1,950 sqm, this home is positioned in a tranquil leafy setting, with views of the hills. The natural spring water creek and pond running through this property are desirable features that complete the picturesque grounds.
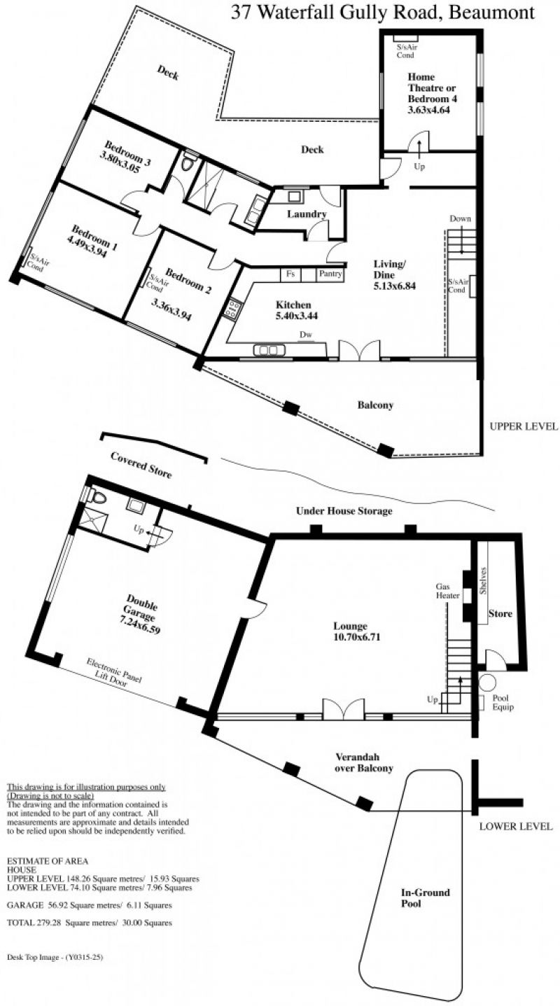
Behind original stone fencing is a pebbled pathway that leads to the footbridge and the grand entrance of this home. The attractive rendered facade features a spacious tiled portico and verandah area overlooking the swimming pool.
Large glass doors open into the spacious living area, complete with tiled floors and mosaic detailing, charming gas fireplace and decorative wall lighting.
The contemporary jarrah timber staircase with chrome balustrade leads to the central open plan living, dining and kitchen area. The highlight of this space are the large picture windows and spacious balcony drawing in the beautiful views, the ideal setting to entertain guests or relax in peaceful surrounds.
The modern kitchen features quality timber cabinetry with ceaser stone bench tops and mosaic tiled splashback, stainless steel appliances, five-burner gas cook top, rangehood, Miele dishwasher, pantry and ample storage.
This level also offers up to four bedrooms, each with floor to ceiling windows overlooking the lush gardens. Located adjacent the bedrooms is the stylish master bathroom. The bathroom features luxury double sized-frameless shower recess, and his and her separate porcelain basins with vanity.The dark floors and light walls add a perfect contrast to this updated bathroom.
The fourth bedroom provides the option of a home theatre or rumpus room.
A timber decking area is located at the rear and a double garage with bathroom provides access into the downstairs living and entertaining area.
Additional features include heating and cooling, large under cover store room and under house storage, as well as spacious laundry.
This is a great opportunity to secure a property in this tightly held hills location, only 7km away from Adelaide's CBD. Close to quality schools, local conveniences and popular walking trails.
Overlooking landscaped grounds spanning approximately 1,950 sqm, this home is positioned in a tranquil leafy setting, with views of the hills. The natural spring water creek and pond running through this property are desirable features that complete the picturesque grounds.
Behind original stone fencing is a pebbled pathway that leads to the footbridge and the grand entrance of this home. The attractive rendered facade features a spacious tiled portico and verandah area overlooking the swimming pool.
Large glass doors open into the spacious living area, complete with tiled floors and mosaic detailing, charming gas fireplace and decorative wall lighting.
The contemporary jarrah timber staircase with chrome balustrade leads to the central open plan living, dining and kitchen area. The highlight of this space are the large picture windows and spacious balcony drawing in the beautiful views, the ideal setting to entertain guests or relax in peaceful surrounds.
The modern kitchen features quality timber cabinetry with ceaser stone bench tops and mosaic tiled splashback, stainless steel appliances, five-burner gas cook top, rangehood, Miele dishwasher, pantry and ample storage.
This level also offers up to four bedrooms, each with floor to ceiling windows overlooking the lush gardens. Located adjacent the bedrooms is the stylish master bathroom. The bathroom features luxury double sized-frameless shower recess, and his and her separate porcelain basins with vanity.The dark floors and light walls add a perfect contrast to this updated bathroom.
The fourth bedroom provides the option of a home theatre or rumpus room.
A timber decking area is located at the rear and a double garage with bathroom provides access into the downstairs living and entertaining area.
Additional features include heating and cooling, large under cover store room and under house storage, as well as spacious laundry.
This is a great opportunity to secure a property in this tightly held hills location, only 7km away from Adelaide's CBD. Close to quality schools, local conveniences and popular walking trails.
