43 Franklin Parade, Encounter Bay
House
Luxury Oceanfront Living
Indulge in a luxurious lifestyle all-year-round or escape the city to enjoy weekend getaways, this spectacular ocean front residence is the ultimate choice!
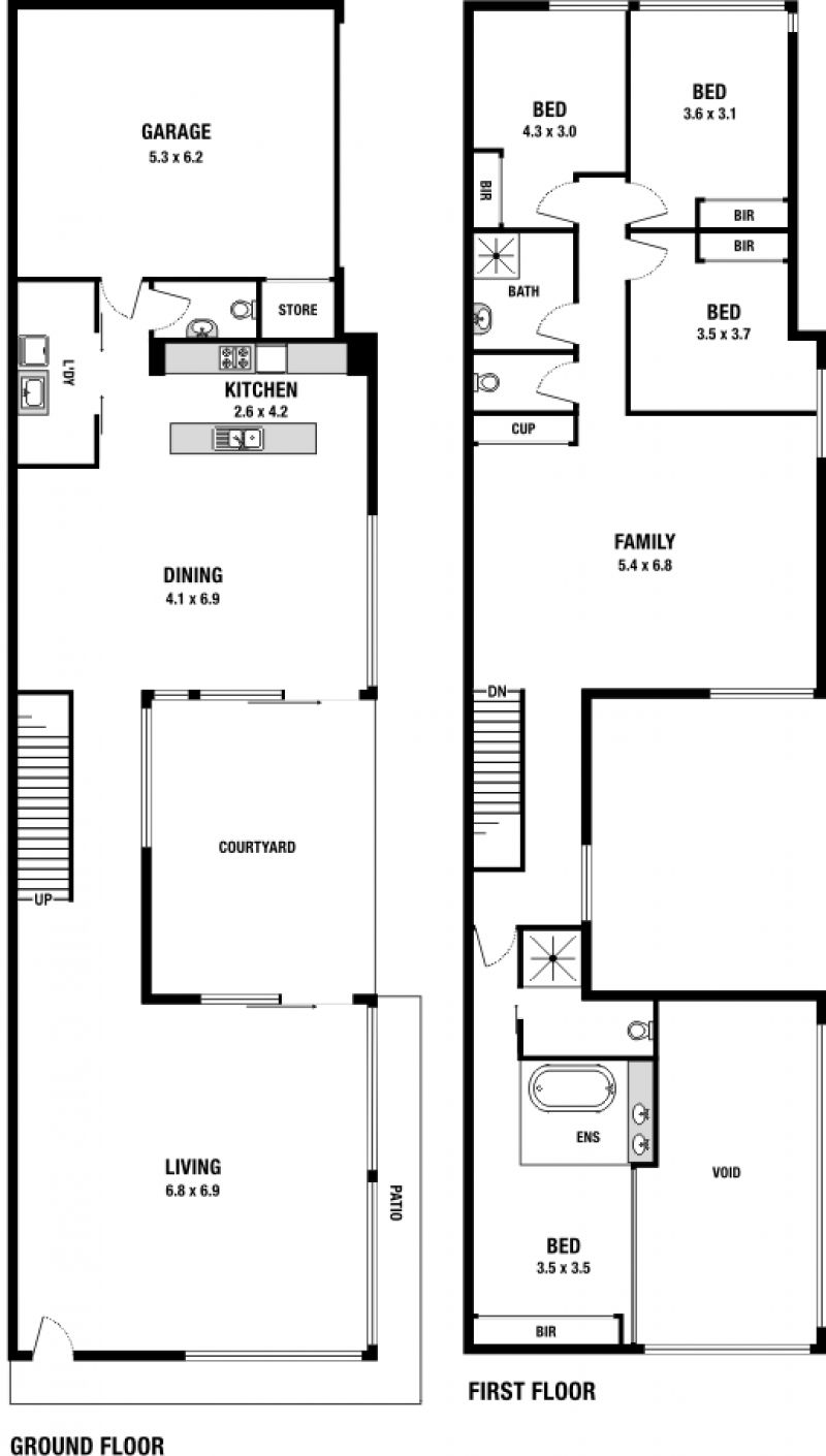
Architecturally designed to capture priceless coastline views of Encounter Bay, the impressive corner position maximizes its use of light and space. The solid iron-bark pivot door opens to a stylish and sophisticated entrance, featuring the spacious lounge with void ceiling, high gloss walnut floors, chiffon sheer curtains and imported European ethanol fireplace.
The designer Jag kitchen, complete with 32mm marble bench top and Miele appliances overlooks the classy dining area and centrally-located transparent outdoor entertaining courtyard. Floor to ceiling commercial grade windows and quality fixtures and fittings are standout features of this world-class contemporary home.
The entrance level also comprises convenient guest powder room, compact laundry with Bosch washing machine and dryer, double garage with internal access and store room.
Modern Australian Oak staircase with glass balustrade leads to the upstairs family room, four bedrooms (all include build-in robes) and neutral-toned bathroom with separate toilet. The luxurious master suite enjoys ocean views and an ensuite which showcases a freestanding black and white enamel bath against illuminated mosaic tiles.
Ducted reverse cycle air-conditioning, landscaping with automatic irrigation and carport are also desirable features of this home.
Built by Dawley Property, this masterpiece is a grand opportunity to own and enjoy. Contact Pat Schinella 0412 90 90 95 to arrange your private inspection
Architecturally designed to capture priceless coastline views of Encounter Bay, the impressive corner position maximizes its use of light and space. The solid iron-bark pivot door opens to a stylish and sophisticated entrance, featuring the spacious lounge with void ceiling, high gloss walnut floors, chiffon sheer curtains and imported European ethanol fireplace.
The designer Jag kitchen, complete with 32mm marble bench top and Miele appliances overlooks the classy dining area and centrally-located transparent outdoor entertaining courtyard. Floor to ceiling commercial grade windows and quality fixtures and fittings are standout features of this world-class contemporary home.
The entrance level also comprises convenient guest powder room, compact laundry with Bosch washing machine and dryer, double garage with internal access and store room.
Modern Australian Oak staircase with glass balustrade leads to the upstairs family room, four bedrooms (all include build-in robes) and neutral-toned bathroom with separate toilet. The luxurious master suite enjoys ocean views and an ensuite which showcases a freestanding black and white enamel bath against illuminated mosaic tiles.
Ducted reverse cycle air-conditioning, landscaping with automatic irrigation and carport are also desirable features of this home.
Built by Dawley Property, this masterpiece is a grand opportunity to own and enjoy. Contact Pat Schinella 0412 90 90 95 to arrange your private inspection
