44 Windsor Avenue, Clearview
House
Reside. Invest. Develop.
AUCTION ONSITE: Saturday 19th of December at 11am (Registrations open from 10.30am) Recent sales available upon request.
Set in a thriving location this exciting opportunity is not to be missed. Suiting first home buyers right through to investors and keen developers, this property offers multiple options.
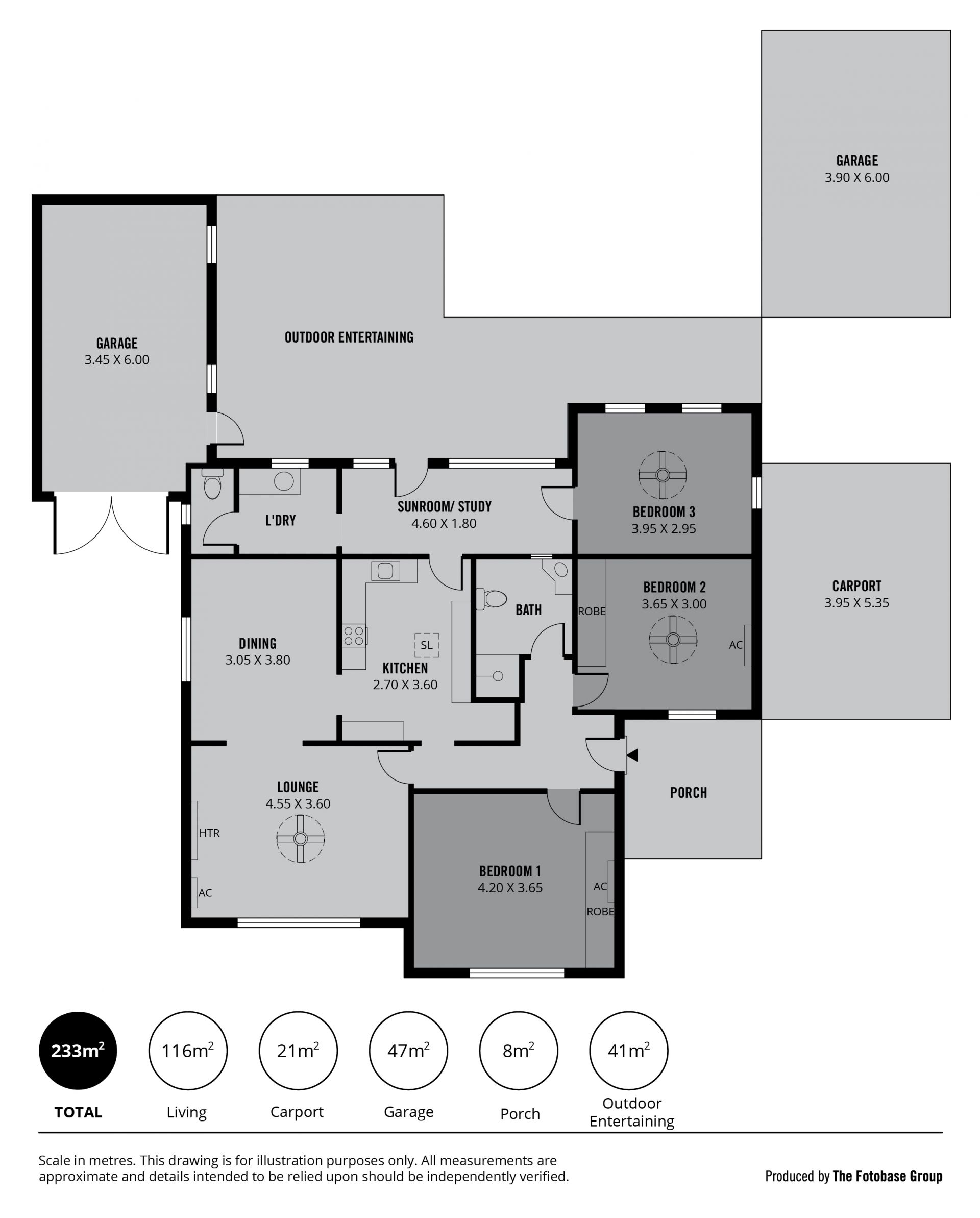
With charming character features, the solid 1950's built home is in neat and tidy condition. Pine timber floors and ornate ceilings feature throughout. Inside are three large bedrooms with robes, spacious light filled lounge and adjoining dining room, an immaculate kitchen and neutral toned bathroom both of which have been updated over time. There are two toilets, laundry, and a sunroom/study. The paved outdoor verandah overlooks the spacious rear yard with two separate garages plus a carport. With gas heating and three split-system air-conditioners - make the home your own with scope to further renovate and or extend.
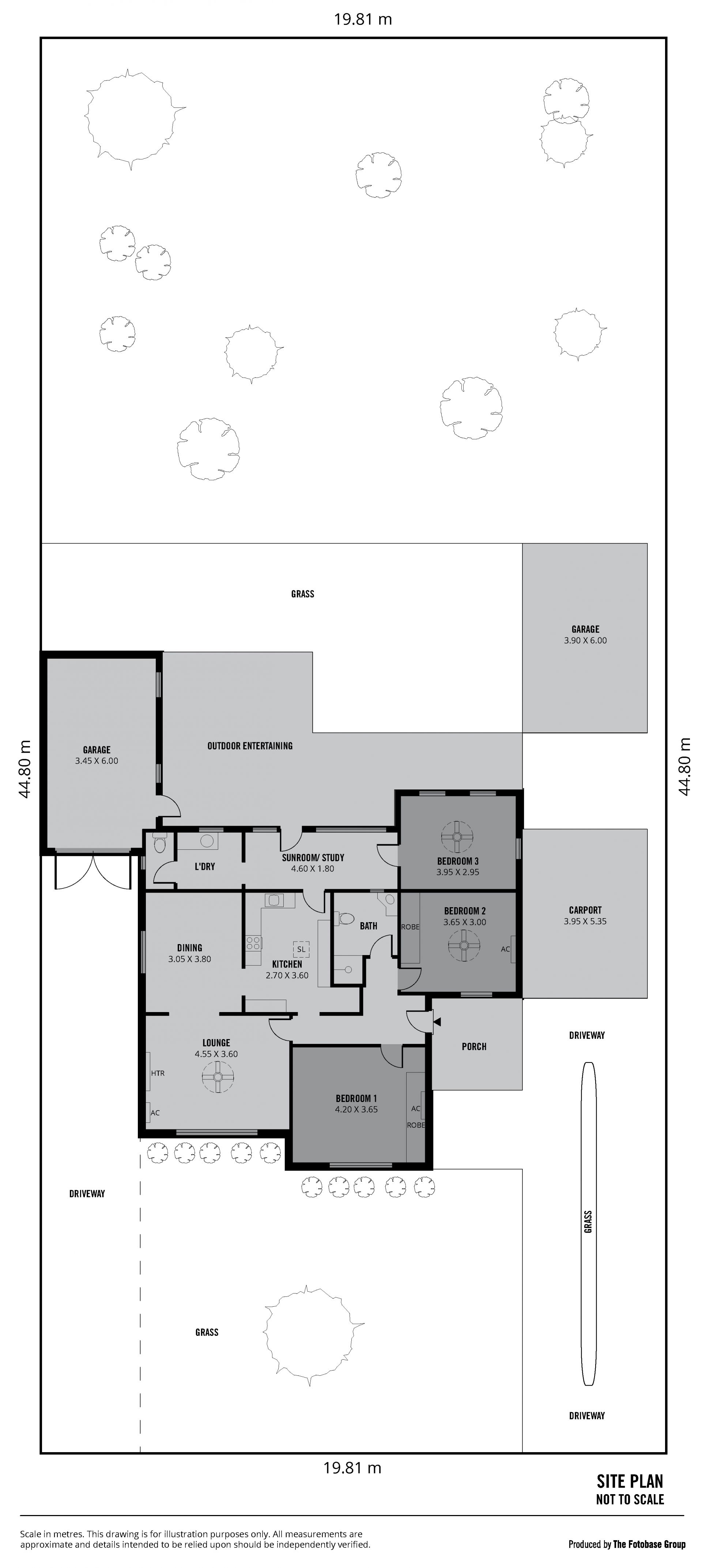
Positioned on an allotment of 887m2 (approx) with a 19.8m frontage with dual driveways, this large block offers an outstanding opportunity to sub-divide, build brand new dwellings (subject to council consent) or keep the existing home and reap the rewards.
Located adjacent popular Lightsview Estate, this area has great potential. Easy access to public transport links to the City and close to schools, shopping centres and local conveniences.
All information deemed reliable but not guaranteed. All interested parties should make and rely upon their own enquiries to determine the accuracy of the information provided. If the property is advertised for auction, the vendors statement may be inspected at Agency Avenue office for 3 business days leading up to the auction and 30 minutes prior to the auction starting.
Set in a thriving location this exciting opportunity is not to be missed. Suiting first home buyers right through to investors and keen developers, this property offers multiple options.
With charming character features, the solid 1950's built home is in neat and tidy condition. Pine timber floors and ornate ceilings feature throughout. Inside are three large bedrooms with robes, spacious light filled lounge and adjoining dining room, an immaculate kitchen and neutral toned bathroom both of which have been updated over time. There are two toilets, laundry, and a sunroom/study. The paved outdoor verandah overlooks the spacious rear yard with two separate garages plus a carport. With gas heating and three split-system air-conditioners - make the home your own with scope to further renovate and or extend.
Positioned on an allotment of 887m2 (approx) with a 19.8m frontage with dual driveways, this large block offers an outstanding opportunity to sub-divide, build brand new dwellings (subject to council consent) or keep the existing home and reap the rewards.
Located adjacent popular Lightsview Estate, this area has great potential. Easy access to public transport links to the City and close to schools, shopping centres and local conveniences.
All information deemed reliable but not guaranteed. All interested parties should make and rely upon their own enquiries to determine the accuracy of the information provided. If the property is advertised for auction, the vendors statement may be inspected at Agency Avenue office for 3 business days leading up to the auction and 30 minutes prior to the auction starting.
