11 Gill Road, Lightsview
House
Contemporary. Flexible. Light-filled.
This contemporary 2018 built, Torrens Titled residence is only 8km from the city. It offers easy access to public transport and is close to community parks, cafes, restaurants and schools - the lifestyle that only this beautiful precinct can offer at such great value.
Perfect for home owners or astute investors (approx 5% rental return pa), this property includes many added features and upgrades that you just wont find in neighbouring properties. It is bright, vibrant and full of style and most importantly offers secure living.
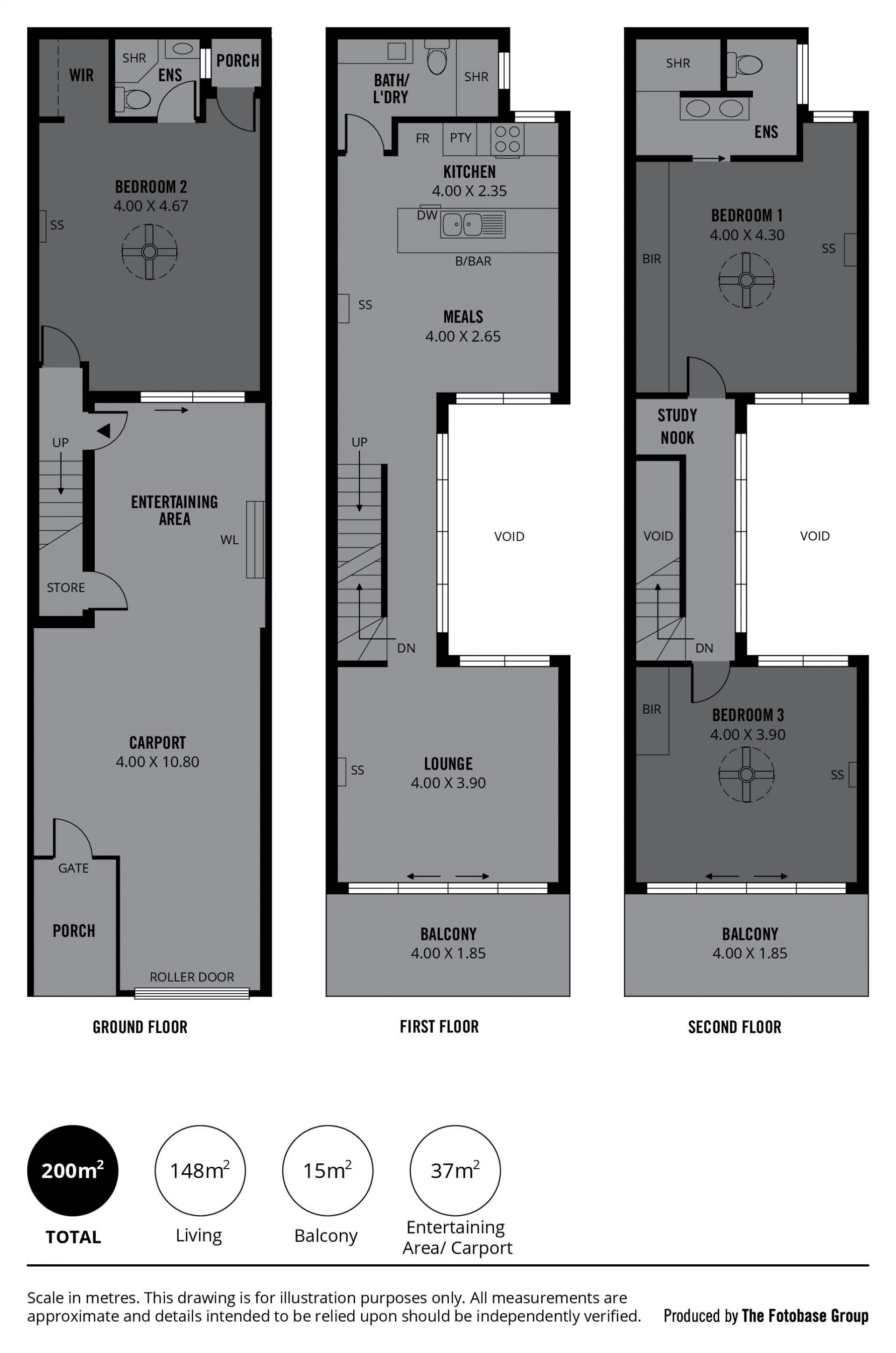
Based on European style living, there is a flexible floorplan that flows across 3 levels. The secure entrance features a tiled courtyard at the bottom of the impressive light-well. This level features the first bedroom (with walk-in robe and ensuite) or second living room.
The central living and entertaining spaces of this home are featured on the middle level. The on-trend kitchen has modern cabinetry, stone benchtops, stainless steel appliances with gas cooking and dishwasher. Surrounded by fabulous light and having a large meals area, this level also offers a separate living area with floor to ceiling sliding doors leading out to a great size balcony with views – the perfect space to enjoy and entertain guests. This level also features a third bathroom in with the laundry.
The other two large bedrooms are located on the top level, both offering floor to ceiling built in robes – one with a gorgeous outlook from the private balcony – and the other having an ensuite with double basin and large shower recess.
All bedrooms have ceiling fans, split system air conditioners and plush dark grey carpet, mirrored doors to the robes allow even more light into these areas.
All bathrooms feature quality stone bench tops as does the laundry. The living and kitchen area have their own split-systems so it is so economical on the power bills.
Additional features include, double length garage with remote control roller door, secure and private entrance, handy study nook and energy efficient solar panels to ease quarterly bills.
This is an easy-care property offering a low maintenance lifestyle in a highly sought-after location.
Perfect for home owners or astute investors (approx 5% rental return pa), this property includes many added features and upgrades that you just wont find in neighbouring properties. It is bright, vibrant and full of style and most importantly offers secure living.
Based on European style living, there is a flexible floorplan that flows across 3 levels. The secure entrance features a tiled courtyard at the bottom of the impressive light-well. This level features the first bedroom (with walk-in robe and ensuite) or second living room.
The central living and entertaining spaces of this home are featured on the middle level. The on-trend kitchen has modern cabinetry, stone benchtops, stainless steel appliances with gas cooking and dishwasher. Surrounded by fabulous light and having a large meals area, this level also offers a separate living area with floor to ceiling sliding doors leading out to a great size balcony with views – the perfect space to enjoy and entertain guests. This level also features a third bathroom in with the laundry.
The other two large bedrooms are located on the top level, both offering floor to ceiling built in robes – one with a gorgeous outlook from the private balcony – and the other having an ensuite with double basin and large shower recess.
All bedrooms have ceiling fans, split system air conditioners and plush dark grey carpet, mirrored doors to the robes allow even more light into these areas.
All bathrooms feature quality stone bench tops as does the laundry. The living and kitchen area have their own split-systems so it is so economical on the power bills.
Additional features include, double length garage with remote control roller door, secure and private entrance, handy study nook and energy efficient solar panels to ease quarterly bills.
This is an easy-care property offering a low maintenance lifestyle in a highly sought-after location.
