2A Winston Crescent, Glengowrie
House
Location. Character. Entertainer. Auction cancelled.
We are excited to present this much-loved family home to the market for the first time in many years. The pride and joy of its proud owners, this home holds years of treasured memories of parties and gatherings.
Perfectly positioned amongst other beautifully kept homes is the ever-popular Glengowrie, where you have everything at your fingertips. Walk to the Glenelg shopping and entertainment precinct, and of course the golden sands of Glenelg beach. Minutes away from the Tram for an easy commute to the CBD.
This lovely character home was built in 1940 and graces stunning lofty ceilings and traditional ornate details. Over the years this home has undergone many transformations and offers an open plan layout to suit modern living while maintaining its lovely charm.
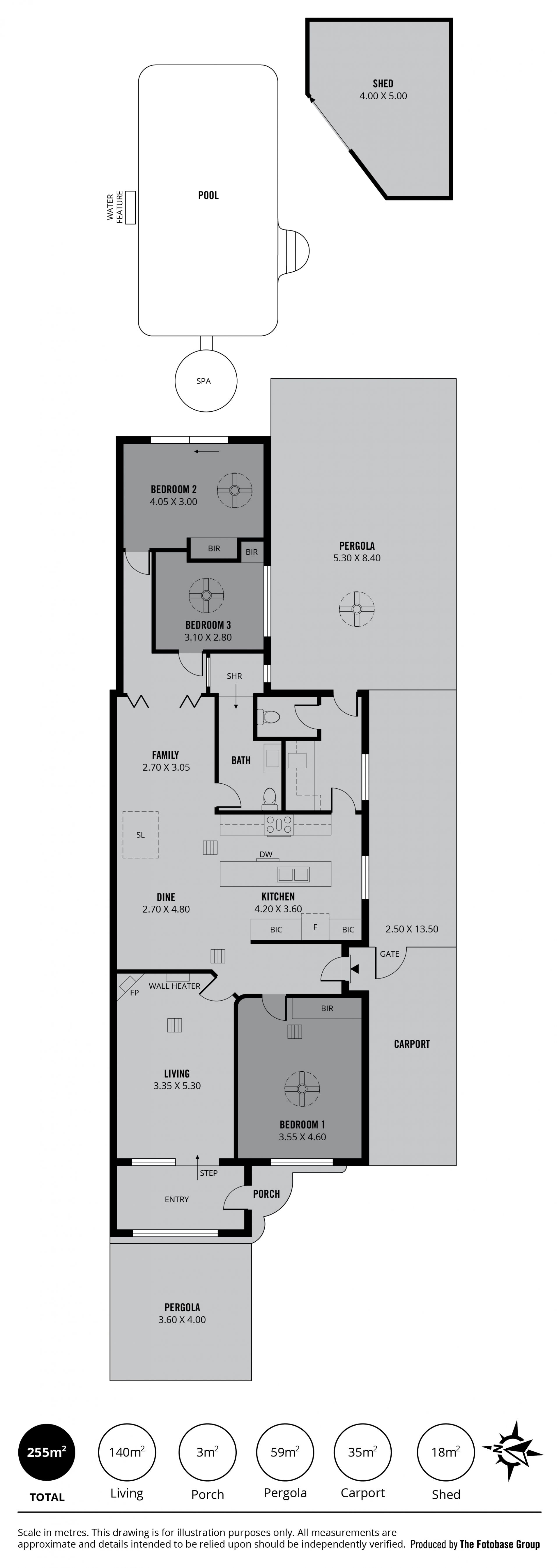
Featuring 3 generous bedrooms and a study, plus 2 living areas allowing options of a 4th bedroom if that suits your needs. Stepping through the front door, the home welcomes you with timber floors, high ceilings and that homely feel of warmth and tradition.
The chic kitchen is the hub of the home, boasting a huge island bench with stone tops, it is an ideal space for family and friends to gather. With high-quality appliances including a 900 free standing oven, gas cook top and dishwasher. Cleverly designed with a huge bank of cupboards offering loads of convenient storage. The kitchen overlooks the living space where you can entertain or just relax. A fabulous electric skylight giving plenty of light to feel this room or you have the option in the height of summer to simply close it over.
Ducted evaporative air conditioning flows throughout the home for your comfort.
A formal lounge offers your family the options of creating a 4th bedroom or as currently used as a lounge room with fabulous gas heating with reverse vent through to the living area. For those needing a home office, you will find a light filled room with external access perfect if you run a business from home.
All three bedrooms have been fitted with built in robes and ceiling fans. The master is a brilliant size and located at the front of the home. Bedrooms 2 and 3 are also generous in size. Bedroom 3 is light and bright overlooking the sparkling pool, this bedroom could also be an option of the main if you preferred the beautiful view from this bedroom.
The bathroom is centrally located and offers a good-sized shower where natural tones were chosen when renovated. There is a 2nd toilet which is perfectly located if you are enjoying some time in the pool.
The large alfresco is very impressive and offers that indoor/outdoor entertaining area with pull down blinds for your comfort should the weather be adverse. Plumbed outdoor sink and pura tap is a bonus. Relax on those hot summer days and nights in the pool with inbuilt spa. A lovely water feature creates a resort feel to your pool. The pool lights are very ambient once the sun goes down.
The low maintenance back yard is not only secure but private, the front garden is also fully fenced. An undercover double length carport is perfect for storing a boat, caravan or up to 3 cars.
Around the corner from the popular Spellman's Social café, Westfield Marion and SA Aquatic Centre a short drive away. Easy access to sporting clubs and facilities, Flinders Medical Centre, quality schools including Immanuel College and Our lady of Grace primary school. This divine home combines the perfect balance of a convenient location and superb beachside lifestyle. This could be your forever home.
Disclaimer: All information deemed reliable but not guaranteed. All interested parties should make and rely upon their own enquiries to determine the accuracy of the information provided. If the property is advertised for auction, the vendors statement may be inspected at Agency Avenue office for 3 business days leading up to the auction and 30 minutes prior to the auction starting.
Perfectly positioned amongst other beautifully kept homes is the ever-popular Glengowrie, where you have everything at your fingertips. Walk to the Glenelg shopping and entertainment precinct, and of course the golden sands of Glenelg beach. Minutes away from the Tram for an easy commute to the CBD.
This lovely character home was built in 1940 and graces stunning lofty ceilings and traditional ornate details. Over the years this home has undergone many transformations and offers an open plan layout to suit modern living while maintaining its lovely charm.
Featuring 3 generous bedrooms and a study, plus 2 living areas allowing options of a 4th bedroom if that suits your needs. Stepping through the front door, the home welcomes you with timber floors, high ceilings and that homely feel of warmth and tradition.
The chic kitchen is the hub of the home, boasting a huge island bench with stone tops, it is an ideal space for family and friends to gather. With high-quality appliances including a 900 free standing oven, gas cook top and dishwasher. Cleverly designed with a huge bank of cupboards offering loads of convenient storage. The kitchen overlooks the living space where you can entertain or just relax. A fabulous electric skylight giving plenty of light to feel this room or you have the option in the height of summer to simply close it over.
Ducted evaporative air conditioning flows throughout the home for your comfort.
A formal lounge offers your family the options of creating a 4th bedroom or as currently used as a lounge room with fabulous gas heating with reverse vent through to the living area. For those needing a home office, you will find a light filled room with external access perfect if you run a business from home.
All three bedrooms have been fitted with built in robes and ceiling fans. The master is a brilliant size and located at the front of the home. Bedrooms 2 and 3 are also generous in size. Bedroom 3 is light and bright overlooking the sparkling pool, this bedroom could also be an option of the main if you preferred the beautiful view from this bedroom.
The bathroom is centrally located and offers a good-sized shower where natural tones were chosen when renovated. There is a 2nd toilet which is perfectly located if you are enjoying some time in the pool.
The large alfresco is very impressive and offers that indoor/outdoor entertaining area with pull down blinds for your comfort should the weather be adverse. Plumbed outdoor sink and pura tap is a bonus. Relax on those hot summer days and nights in the pool with inbuilt spa. A lovely water feature creates a resort feel to your pool. The pool lights are very ambient once the sun goes down.
The low maintenance back yard is not only secure but private, the front garden is also fully fenced. An undercover double length carport is perfect for storing a boat, caravan or up to 3 cars.
Around the corner from the popular Spellman's Social café, Westfield Marion and SA Aquatic Centre a short drive away. Easy access to sporting clubs and facilities, Flinders Medical Centre, quality schools including Immanuel College and Our lady of Grace primary school. This divine home combines the perfect balance of a convenient location and superb beachside lifestyle. This could be your forever home.
Disclaimer: All information deemed reliable but not guaranteed. All interested parties should make and rely upon their own enquiries to determine the accuracy of the information provided. If the property is advertised for auction, the vendors statement may be inspected at Agency Avenue office for 3 business days leading up to the auction and 30 minutes prior to the auction starting.
