2/3 Macklin Street, Parkside
Unit
City-Fringe. Lifestyle. On-Trend.
Apply by setting up your profile on tenant options: https://app.tenantoptions.com.au/
Enjoy living a city-fringe lifestyle. Ride your bike into the City Centre or stroll to the many cafes and restaurants located at your doorstep. Shop at the local boutiques on nearby Unley and King William Roads or visit the community events held in Victoria Park and the Fullarton Markets – This trendy cosmopolitan precinct offers a great vibe!
Located on a quiet one-way street, this ground floor unit sits among tranquil grounds and has been updated and renovated throughout, with new carpet and blinds (to be installed), neutral tones and light and bright living spaces.
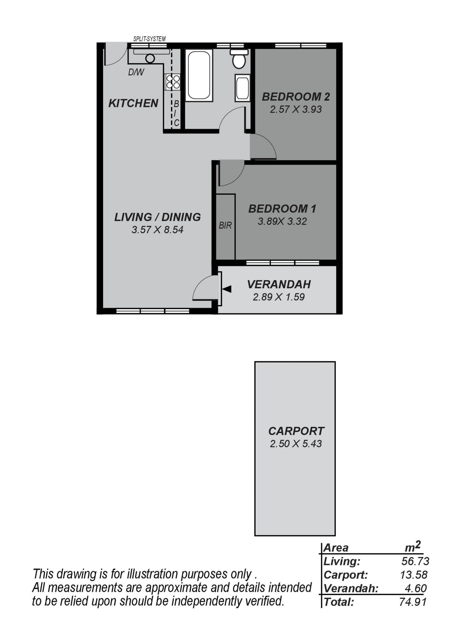
The inviting entrance opens to the light-filled open plan living area. This space features the lounge and dining with large picture window and cosy carpet underfoot. Adjacent this space is the kitchen with pine timber floors. The kitchen offers stainless steel appliances; oven and electric cook top, dishwasher and convenient bench space.
There are two good-sized bedrooms (the master includes mirrored built-in robes) and a modern bathroom with trendy fixtures and fittings. It includes shower over full length bath, heat lighting and modern slim-line vanity. The bathroom also includes space for internal laundry facilities. A huge bonus!
There is a private undercover car space, clothesline, and the comfort of split-system air-conditioning. Residents can enjoy the picturesque communal gardens with fruit trees that are maintained by a gardener.
Close to public transport links (train, bus and tram) and walking distance to Parkside Hotel and Frewville Foodland (once voted the world's best supermarket). Zoned for Glenunga International High School and Parkside Primary School.
12 Month Lease
RLA236426
Available 27th May 2025
Enjoy living a city-fringe lifestyle. Ride your bike into the City Centre or stroll to the many cafes and restaurants located at your doorstep. Shop at the local boutiques on nearby Unley and King William Roads or visit the community events held in Victoria Park and the Fullarton Markets – This trendy cosmopolitan precinct offers a great vibe!
Located on a quiet one-way street, this ground floor unit sits among tranquil grounds and has been updated and renovated throughout, with new carpet and blinds (to be installed), neutral tones and light and bright living spaces.
The inviting entrance opens to the light-filled open plan living area. This space features the lounge and dining with large picture window and cosy carpet underfoot. Adjacent this space is the kitchen with pine timber floors. The kitchen offers stainless steel appliances; oven and electric cook top, dishwasher and convenient bench space.
There are two good-sized bedrooms (the master includes mirrored built-in robes) and a modern bathroom with trendy fixtures and fittings. It includes shower over full length bath, heat lighting and modern slim-line vanity. The bathroom also includes space for internal laundry facilities. A huge bonus!
There is a private undercover car space, clothesline, and the comfort of split-system air-conditioning. Residents can enjoy the picturesque communal gardens with fruit trees that are maintained by a gardener.
Close to public transport links (train, bus and tram) and walking distance to Parkside Hotel and Frewville Foodland (once voted the world's best supermarket). Zoned for Glenunga International High School and Parkside Primary School.
12 Month Lease
RLA236426
Available 27th May 2025
