9 Barrow Court, Mount Barker
House
SIze. Space. Opportunity.
Showcasing everything the modern family desires, this expansive residence by Format Homes offers scale on a commanding 2369sqm (approx) block. Set in a quiet Mt Barker cul-de-sac, its striking red brick façade and steel frame construction highlight the quality of this 2008-built home. Add some TLC to instantly add value to your investment and create your perfect home.
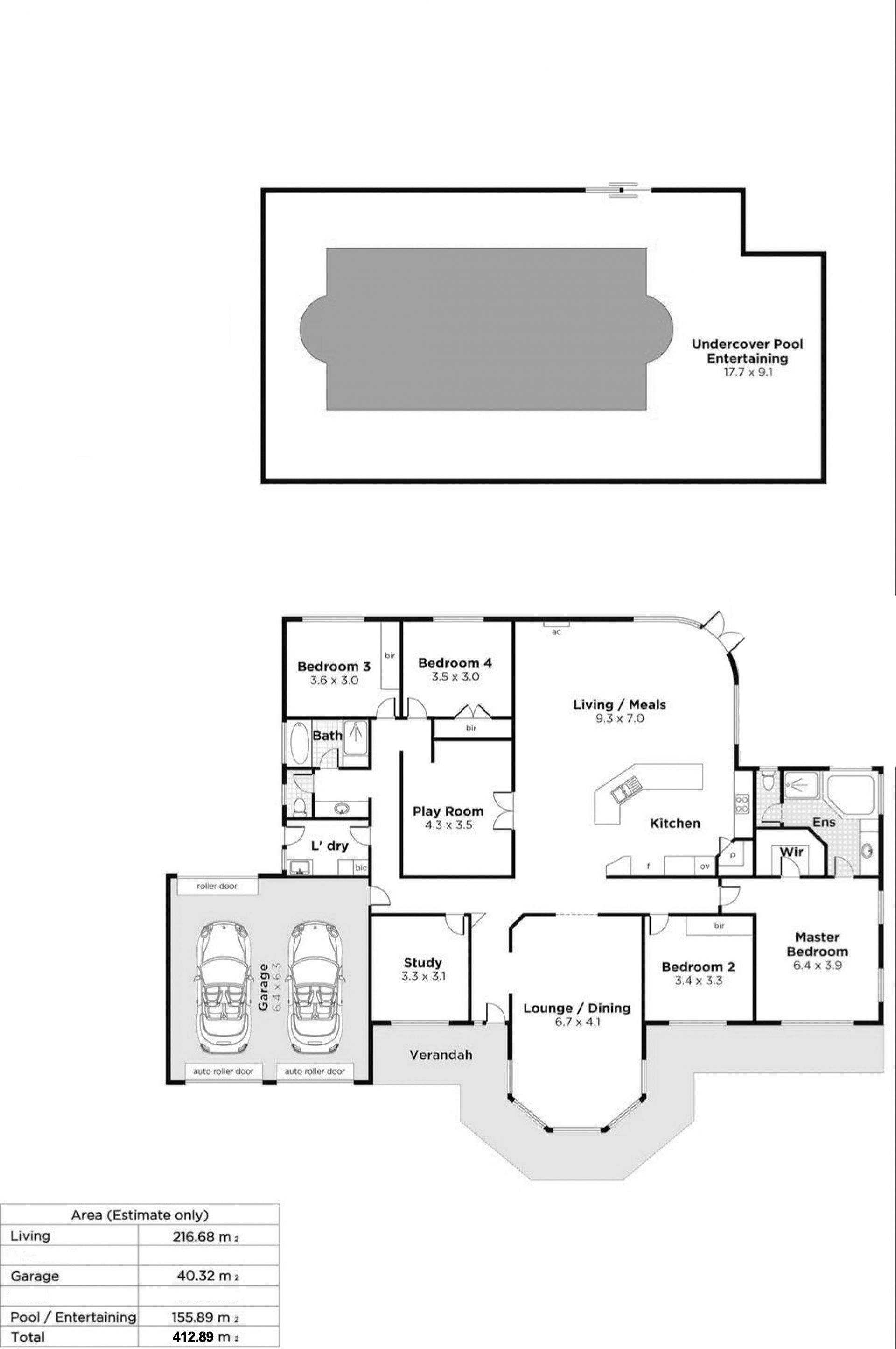
Multiple living zones provide flexibility, from the formal lounge with expansive bay window to the separate games room that doubles as a children's retreat. Room for the whole family with 5 bedrooms (or four plus home office). The master suite is complete with walk-in robe and ensuite with spa, while bedrooms two, three and four all have built-in wardrobes. At the heart of the home, an expansive open-plan living and dining area is lined with tiled floors, anchored by a 2-pak kitchen with granite benchtops, stainless appliances, walk-in pantry and pool views.
Outdoors is a blank canvas waiting for you to transform it into the perfect entertaining zone. The solar-heated tiled pool with integrated spa and undercover entertaining pavilion is complemented by a huge lawned yard for kids and pets. Practical features include a double garage with internal access, 12 panel solar power system, and split-system air-conditioning.
A complete lifestyle property that is waiting for you to add your own touch and create your perfect home in this prized estate, just minutes from the heart of Mt Barker.
Multiple living zones provide flexibility, from the formal lounge with expansive bay window to the separate games room that doubles as a children's retreat. Room for the whole family with 5 bedrooms (or four plus home office). The master suite is complete with walk-in robe and ensuite with spa, while bedrooms two, three and four all have built-in wardrobes. At the heart of the home, an expansive open-plan living and dining area is lined with tiled floors, anchored by a 2-pak kitchen with granite benchtops, stainless appliances, walk-in pantry and pool views.
Outdoors is a blank canvas waiting for you to transform it into the perfect entertaining zone. The solar-heated tiled pool with integrated spa and undercover entertaining pavilion is complemented by a huge lawned yard for kids and pets. Practical features include a double garage with internal access, 12 panel solar power system, and split-system air-conditioning.
A complete lifestyle property that is waiting for you to add your own touch and create your perfect home in this prized estate, just minutes from the heart of Mt Barker.
